Tìm hiểu dòng sản phẩm giãn xây giá tốt nhất hiện nay, căn nhà phố tại Green Paradise, tọa lạc tại Phân khu The Green Bay, Tiểu khu Vĩnh Ngọc, với diện tích đất 100m²
Chính sách Giãn Xây hay còn gọi là giãn tiến độ thanh toán, là một chiến lược tài chính thông minh được chủ đầu tư áp dụng để giảm đáng kể áp lực về dòng tiền cho khách hàng. Bằng cách kéo dài thời gian thanh toán, chính sách này mang lại sự linh hoạt và chủ động cao hơn trong việc quản lý vốn cá nhân, đặc biệt quan trọng trong các chu kỳ thị trường biến động. Việc quyết định mua các sản phẩm giãn xây là cực kỳ nên làm đối với nhà đầu tư thông thái.
Bạn không chỉ có thể sở hữu tài sản giá trị với mức giá tốt ở giai đoạn đầu, mà còn tận dụng được khoảng thời gian giãn cách để chuẩn bị tài chính và đồng thời chứng kiến sự tăng trưởng vượt trội của dự án. Đây chính là cách tối ưu hóa lợi nhuận mà không cần chịu gánh nặng tài chính dồn dập.
Cơ hội đầu tư vàng vào bất động sản ven biển đã hiện hữu với Nhà Phố Liền Kề VN48-582 tại Green Paradise – một sản phẩm giãn xây độc quyền. Căn nhà phố này sở hữu vị trí chiến lược tại Tiểu khu Vịnh Ngọc đắt giá, nơi hội tụ tiềm năng thương mại và nghỉ dưỡng không giới hạn. Với thông số ấn tượng: Diện tích đất 100m² và Tổng diện tích sàn xây dựng lên tới 308.5m², VN48-582 là tài sản kim cương đang chờ đợi nhà đầu tư nắm bắt. Chính sách giãn xây ưu việt đi kèm sẽ giúp Quý vị dễ dàng sở hữu và tối đa hóa lợi nhuận.
Tổng quan vị trí dự án Vinhomes Green Paradise – Phân khu B (The Green Bay – Vịnh Ngọc)
Vinhomes Green Paradise là siêu đô thị lấn biển quy mô lớn tại huyện Cần Giờ, phát triển theo tiêu chí Xanh — Thông minh — Sinh thái với diện tích hàng nghìn ha và tham vọng trở thành điểm nhấn du lịch — đô thị biển cho TP. HCM. Dự án tọa lạc chủ yếu tại xã Long Hòa và thị trấn Cần Thạnh, ôm trọn bờ biển với các vịnh nội khu, hệ kênh đào và mảng xanh lớn — lợi thế rõ rệt cho tầm nhìn cảnh quan và du lịch biển.
Phân khu B trong quy hoạch chính thức mang tên The Green Bay — được định vị là “trái tim đời sống đô thị”, tập trung khu dân cư thường trú và dịch vụ công cộng, là nơi phù hợp cho an cư lâu dài. Hệ sinh thái tiện ích nội — ngoại khu rất đầy đủ: sân golf, nhà hát biểu diễn, bến du thuyền, quảng trường ẩm thực, công viên chủ đề, trung tâm y tế — giáo dục và chuỗi tiện ích giải trí nghỉ dưỡng tiêu chuẩn cao. Đây là điểm cộng lớn cho cư dân và nhà đầu tư.

Về kết nối: hiện di chuyển từ trung tâm TP.HCM tới Cần Giờ chủ yếu qua tuyến Nguyễn Văn Linh → Phú Mỹ Hưng → Phà Bình Khánh; trong tương lai khi Cầu Cần Giờ (thay phà) và các tuyến vành đai, metro hoàn thiện sẽ rút ngắn thời gian đáng kể, nâng cao giá trị khu vực.
Tổng quan Nhà phố Vinhomes Cần Giờ
Các sản phẩm nhà phố tại đây được thiết kế hiện đại, bố trí công năng linh hoạt – đáp ứng nhu cầu an cư, kinh doanh hoặc cho thuê. Pháp lý minh bạch, sở hữu lâu dài đối với người Việt Nam, thời hạn 50 năm đối với khách hàng nước ngoài.

Với quy mô lớn, vị trí chiến lược cùng hạ tầng đang được đầu tư mạnh mẽ, nhà phố Vinhomes Cần Giờ hứa hẹn trở thành lựa chọn hàng đầu cho khách hàng tìm kiếm không gian sống đẳng cấp và giá trị đầu tư bền vững tại khu Nam TP.HCM.
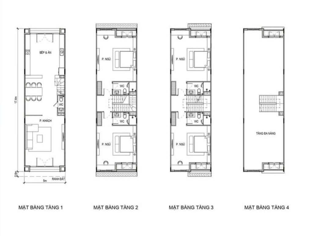
Mặt bằng và thiết kế nhà phố Vinhomes Green Paradise
Trong tổng thể quy hoạch 2.780ha, townhouse Vinhomes Cần Giờ được phát triển nằm dọc theo các trục đường nội khu của các khu vực nhà ở thương mại tại dự án. Đây là dòng sản phẩm được phát triển với định hướng tối đa hóa tiện ích sử dụng, đồng thời vẫn giữ vững tiêu chí hiện đại và tính thẩm mỹ cao.
Dự án được chia thành 5 phân khu với chức năng rõ ràng, nhờ đó nhà phố cũng có sự phong phú về phong cách thiết kế. Từ nét tinh tế của kiến trúc Đông Dương, vẻ trang nhã của phong cách Hy Lạp, đến sự sang trọng kiểu Manhattan hay tinh thần đương đại tối giản – tất cả đều được chăm chút tỉ mỉ và hoàn thiện đồng bộ, góp phần tạo nên một không gian đô thị hài hòa và đẳng cấp.

Về công năng sử dụng, một căn nhà phố điển hình được bố trí như sau:
- Tầng 1: Gồm phòng khách, khu bếp, vệ sinh, sân vườn, một số căn còn có gara ô tô riêng biệt.
- Tầng 2–3: Sắp xếp 3–4 phòng ngủ cùng khu sinh hoạt chung. Điểm chung là mỗi phòng đều có ban công và cửa sổ lớn, được thiết kế để đón nắng và gió tự nhiên, tạo nên không gian sống thoáng đãng, gần gũi thiên nhiên.
- Tầng 4: Là không gian mở phục vụ nhu cầu đa dạng như: khu giặt phơi, phòng làm việc hoặc sân thượng thư giãn.
Không chỉ mang lại sự tiện nghi trong sinh hoạt hằng ngày, thiết kế này còn góp phần nâng cao hiệu quả khai thác giá trị đầu tư – phù hợp cả để ở lẫn cho thuê hay kinh doanh.

Lý do nên mua nhà phố Vin Cần Giờ ngay thời điểm này
Sở hữu nhà phố Vinhome Cần Giờ không chỉ là lựa chọn an cư lý tưởng giữa không gian sinh thái – tiện nghi, mà còn mở ra cơ hội đầu tư sinh lời hấp dẫn. Dưới đây là những lý do nổi bật khiến sản phẩm này trở thành “điểm vàng” trên thị trường.
Vị trí địa lý đắc địa, tiềm năng kinh tế và du lịch vượt trội
Nhà phố Vinhomes Cần Giờ sở hữu một vị trí địa lý vô cùng đặc biệt khi tiếp giáp với nhiều khu vực kinh tế trọng điểm của miền Nam. Địa giới huyện giáp ranh với các huyện thuộc tỉnh Đồng Nai, Long An, và Bà Rịa – Vũng Tàu, tạo điều kiện thuận lợi cho giao thương và phát triển kinh tế đa ngành.
Đặc biệt, các căn nhà phố Vinhomes Cần Giờ còn nắm giữ lợi thế lớn khi là khu vực ven biển gần nhất với trung tâm TP.HCM. Điều này không chỉ mang lại không khí trong lành, mát mẻ mà còn tạo điều kiện thuận lợi cho phát triển du lịch sinh thái và nghỉ dưỡng. Với tiềm năng du lịch biển đảo và hệ sinh thái rừng ngập mặn độc đáo, nơi đây hứa hẹn sẽ thu hút một lượng lớn du khách trong và ngoài nước, từ đó gia tăng giá trị bất động sản khu vực.

Thừa hưởng tiện ích nội khu đẳng cấp
Với tầm nhìn chiến lược và năng lực triển khai dự án vượt trội, Vingroup đã kiến tạo nên một hệ thống tiện ích nội khu đẳng cấp và toàn diện tại Vinhomes Green Paradise Cần Giờ. Nơi đây không chỉ sở hữu vẻ đẹp sang trọng, hiện đại mà còn hòa quyện tinh tế với không gian thiên nhiên sông nước thanh bình và thơ mộng đặc trưng của Cần Giờ. Một số tiện ích nổi bật tại đây như:
- Công viên và mảng cây xanh rộng lớn: Tạo không gian xanh mát, trong lành, là nơi lý tưởng để cư dân thư giãn, tập thể dục và tận hưởng không khí tự nhiên.
- Khu phố đi bộ và chợ đêm: Mang đến sự sôi động, nhộn nhịp và đậm nét văn hóa địa phương, là nơi cư dân có thể mua sắm, vui chơi và thưởng thức ẩm thực đặc sắc.
- Quảng trường trung tâm: Nơi diễn ra các sự kiện văn hóa, giải trí và đặc biệt là cơ hội thưởng thức những món ẩm thực biển độc đáo, tươi ngon của vùng đất Cần Giờ.
- Khu vui chơi Vinpearl Land: Với các trò chơi và hoạt động giải trí đa dạng, phù hợp với mọi lứa tuổi, mang đến những khoảnh khắc vui vẻ và đáng nhớ cho cả gia đình.
- Sở thú Vinpearl Safari: Cơ hội khám phá thế giới động vật hoang dã ngay gần nhà, một trải nghiệm độc đáo và thú vị cho cư dân và du khách.
- Sân golf 27 lỗ theo tiêu chuẩn quốc tế: Đáp ứng nhu cầu của những cư dân yêu thích môn thể thao quý tộc này, đồng thời góp phần nâng tầm đẳng cấp cho dự án.
- Khu vui chơi hiện đại: Trang bị các thiết bị và trò chơi tiên tiến, mang đến những giây phút giải trí sảng khoái cho trẻ em và thanh thiếu niên.

Khả năng khai thác linh hoạt
- Nhà phố tại dự án được thiết kế thông minh với tầng trệt có gara riêng, mặt tiền rộng rãi và kết cấu thuận tiện cho các mục đích kinh doanh như mở shop, văn phòng nhỏ, showroom hoặc cho thuê mặt bằng.
- Từ tầng 2 trở lên, không gian sinh hoạt vẫn đảm bảo sự riêng tư, tiện nghi cho gia đình hoặc khách thuê dài hạn. Điều này tạo nên lợi thế “hai trong một” – vừa để ở, vừa khai thác sinh lời.
- Ngoài ra, với xu hướng staycation (nghỉ dưỡng tại chỗ) đang phát triển, sản phẩm còn có thể vận hành mô hình lưu trú ngắn hạn nhắm đến du khách đến Cần Giờ nghỉ dưỡng cuối tuần.
-
Nhờ vào đa dạng hình thức khai thác, nhà phố tại đây không những giữ được giá trị sử dụng cao, mà còn giúp chủ sở hữu tạo dòng tiền bền vững, kể cả trong giai đoạn thị trường chững lại.

Đón đầu tiềm năng tăng giá
- Nhà phố Vinhome Green Paradise đang được giới đầu tư đánh giá là lựa chọn sáng giá của khu Nam TP.HCM nhờ liền kề những công trình hạ tầng chiến lược. Đặc biệt, cầu Cần Giờ (nối Nhà Bè – Long Hòa) đang trong giai đoạn chuẩn bị thi công sẽ rút ngắn đáng kể thời gian di chuyển vào trung tâm thành phố, thay thế hoàn toàn cho phà Bình Khánh.
- Cùng với đó là việc mở rộng đường Rừng Sác lên sáu làn xe, và định hướng tuyến đường sắt tốc độ cao kết nối với Phú Mỹ Hưng, tạo điều kiện phát triển toàn diện về kinh tế – du lịch – cư dân cho khu vực.
- Nhờ đó, nhà phố tại đây không chỉ mang lại tiềm năng tăng giá đáng kể, mà còn là loại tài sản hiếm, có giá trị bảo toàn vốn cao và dễ thanh khoản trong mọi giai đoạn của chu kỳ thị trường.
Ai nên mua nhà phố Vinhomes Green Paradise?
Nhà phố Vinhome Cần Giờ là lựa chọn lý tưởng cho những khách hàng sau:
Khách hàng là gia đình đa thế hệ: Thiết kế nhà phố 4,5–5 tầng với nhiều phòng riêng và không gian sinh hoạt chung lý tưởng cho 3 thế hệ cùng chung sống nhưng vẫn đảm bảo riêng tư và tiện nghi.
Khách hàng là nhà đầu tư trung – dài hạn: Với tiềm năng tăng giá nhờ hạ tầng phát triển, nhà phố tại đây là tài sản giữ giá tốt, dễ thanh khoản và có biên độ lợi nhuận hấp dẫn theo thời gian.
Khách hàng là chủ doanh nghiệp nhỏ: Không gian tầng trệt rộng rãi, mặt tiền thoáng giúp dễ dàng thiết kế văn phòng riêng, studio hoặc showroom, kết hợp sống – làm việc tại cùng một nơi hiệu quả.
Khách hàng là người tìm second home gần TP.HCM: Vị trí gần biển, không khí trong lành, dễ di chuyển từ trung tâm thành phố, rất phù hợp để làm nơi nghỉ dưỡng cuối tuần hoặc nghỉ dài hạn sau khi về hưu.
Nhà đầu tư khai thác cho thuê: Mô hình nhà phố đa công năng cho phép vừa cho thuê ở dài hạn, vừa có thể vận hành homestay, staycation… giúp tạo dòng tiền ổn định và linh hoạt.
Nhà phố Vinhomes Cần Giờ không chỉ là chốn an cư lý tưởng giữa lòng đô thị sinh thái đẳng cấp, mà còn là tài sản giá trị cao với tiềm năng sinh lời bền vững theo thời gian. Dù anh chị đang tìm kiếm không gian sống chất lượng hay cơ hội đầu tư an toàn, đây chính là thời điểm vàng để sở hữu. Đừng bỏ lỡ cơ hội đón đầu thị trường ngay từ hôm nay!
Liên hệ tư vấn:
- Hotline: 0932.753.046
- Website: chuyennhuonggreenparadise.com
Đội ngũ chuyên gia sẵn sàng tư vấn cơ hội sở hữu và chính sách ưu đãi đặc biệt. Kết nối ngay để định vị tương lai tại siêu dự án đột phá
Thông tin liên quan:
Thị trường biến động cần cân nhắc kỹ; Đầu tư bất động sản cần tầm nhìn xa; Vinhomes ra mắt dự án mới hấp dẫn; Căn hộ cao cấp luôn thu hút người mua; Giá trị tăng theo thời gian dự án; Phân tích kỹ lưỡng trước khi xuống tiền; Lãi suất ngân hàng ảnh hưởng dòng vốn; Tiềm năng du lịch thúc đẩy nghỉ dưỡng; Chất lượng sống tại đô thị thông minh; Quy hoạch hạ tầng thay đổi khu vực; Thiết kế kiến trúc phải thật độc đáo; Khách hàng tin tưởng thương hiệu uy tín;





























Đánh giá
Chưa có đánh giá nào.